Máy tách bằng khí nén kiểu đứng ứng dụng để phân loại tinh các sản phẩm micron khô. Nó có thể phân loại các phần tử hình cầu, dạng vảy hoặc dạng kim cũng như các hạt với tỷ trọng khác nhau.
Rô to phân loại với thiết kế mới nhất, cải thiện đáng kể kích cỡ của sản phẩm được phân loại, mang lại sự phân loại chính xác cao. Trong khi đó, hiệu quả phân loại được cải thiện đáng kể. Máy phân loại đa chức năng có thể sử dụng để sản xuất sản phẩm với khoảng kích cỡ hạt đa dạng. Thiết bị này cũng có thể được sử dụng với nhiều thiết bị nghiền khác nhau để cải thiện hiệu quả sản xuất.
Hệ thống điều khiển tự động tân tiến được áp dụng và quá trình hoạt động được hiển thị theo thực tế. Vận hành dễ dàng, máy tách bằng khí nén hoạt động dưới áp suất âm. Độ ô nhiễm bụi ít hơn 40mg/m3 và độ ồn không cao hơn 60dB.
Thông số kỹ thuật| Model | LFJ-400 | LFJ-600 | LFJ-800 |
| Kích cỡ phân loại (μm) | 2-15 | 2-15 | 2-15 |
| Năng suất (kg/h) | 300-1000 | 500-1500 | 1000-3000 |
| Công suất động cơ (kw) | 4 | 7. 5 | 11 |
| Lưu lượng khí hệ thống (m3/h) | 2400 | 3800 | 5000 |
| Lượng khí tiêu thụ (m3/phút/MPa) | 1.6/0.7 | 2.0/0.7 | 3.0/0.7 |
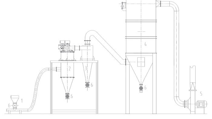
Biểu đồ của hệ thống máy tách bằng khí nén LFJ

1. Bộ cấp liệu
2. Máy tách bằng khí nén kiểu đứng LFJ
3. Bộ tách xyclon
4. Bộ lọc bụi
5. Quạt hút
6. Van quay
Là nhà sản xuất và cung cấp máy tách bằng khí nén kiểu đứng nhiều kinh nghiệm tại Trung Quốc, chúng tôi còn cung cấp bột nano kim loại, máy trộn cát, hệ thống nghiền hạt, bình phản ứng, hệ thống nghiền mịn, v.v…